
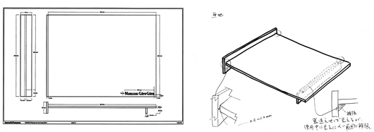
Nanzan GiroGiroの折敷
技魯技魯ハワイ店の南山技魯技魯オープン時にデザイナーDai Sugasawa氏のデザインで、京都の陶芸家伊藤南山氏よりご注文いただいた折敷です。
木製(MDF)木地にウレタン塗料で仕上げたものです。仕上げの表情はシルバーメタリック塗面に金粉を蒔き散らしています。保管スペースを少なくするために積み重ねても安定するような工夫をしました。
サイズは400×300×40で部材の厚みは7mm。大きさに対して薄く繊細な仕上げ表情を求められました。それでいて激しい使い方になることが想像できたので、いかに堅牢な構造、塗膜面を保つかということに苦心しました。
(2011/春open)ハワイで評判の店で大変盛況と聞いております。今のところまだお直しのご依頼は来ておりません。
竹下 達夫さん 京都の旅館の設えをご自宅に再現

海外のお客様を日本でもてなすとき、きまってお使いの京都の旅館があります。そのご主人もそこに宿泊されることもあります。その旅館の立地から味わえる風情と行き届いた設えは非日常の世界で、そこでの居心地のよさは格別なようです。海外出張の多いその方は、たまに居る東京の居宅にその設えを再現することを思いつかれました。当工房がその旅館にある家具類の製作をさせていただいていたご縁でそこの女将からご紹介いただきました。
当工房が製作して設置するお部屋の図面をいただき家具の配置を表したスケッチで提案をいたしました。そして、それぞれの家具の製作図で形状の打合せを繰り返しました。並行して漆塗りの仕上げ表情の手板(ていた…見本板)も製作いたしました。手板をご覧いただきながら家具類の形を思いうかべていただき完成の姿を共有できるまで時間をさきました。
設置後のお部屋